Nuevo avance en el impulso de la cobertura de la ronda de Dalt. Después de que a finales de septiembre se pusiera en marcha un gran pacto de ciudad con entidades vecinales y grupos políticos para la transformación de esta infraestructura viaria y el entorno que la rodea, ahora se da un paso adelante más con el inicio de la tramitación del proyecto ejecutivo de la estructura de la cobertura de la ronda entre la avenida Vallcarca y el IES Vall d’Hebron. El Gobierno municipal, pues, saca adelante una de las actuaciones prioritarias en materia urbanística y de gran importancia para el desarrollo de los barrios de la zona y del conjunto de la ciudad, y da respuesta a una demanda ciudadana largamente reivindicada.
Se trata de la segunda fase de la cobertura de la ronda a su paso por el distrito de Horta-Guinardó. Es la que va a continuación de la primera, de unos 200 metros y ya ejecutada entre el Mercado de la Vall d’Hebron y el Instituto Vall d’Hebron, y permitirá cubrir 340 metros más de ronda en que se podrá generar nueva superficie para uso ciudadano y verde que beneficiará a los vecinos de Sant Genís dels Agudells y la Teixonera. Por lo tanto, con las dos fases se sumará hasta 540 metros de cobertura.
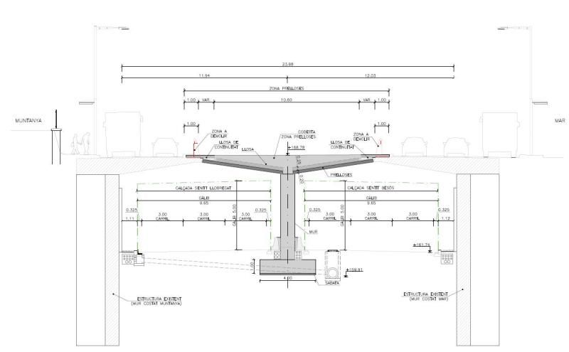
Concretamente, el proyecto ejecutivo de estructura se llevará a aprobación inicial en la Comisión de Ecología, Urbanismo, Movilidad y Vivienda del próximo martes. Incluye las obras para construir el muro central de apoyo de la estructura de cobertura, la propia cobertura y los pasos de servicios a la cobertura, así como el resto de elementos necesarios para habilitar la estructura como túnel: seis salidas de emergencia y una sala técnica integrada en una de las salidas.
La estructura de cobertura tendrá forma de T y se compondrá de un muro central de hormigón armado y una cubierta formada por prelosas apoyadas en la coronación del muro central y sobre el extremo del voladizo. En cuanto a las salidas de emergencia, se habilitarán tres en el lado mar y tres en el lado montaña, y a lo largo de la cobertura se incluyen seis pasos de servicios.
Las obras de estructura se ejecutarán en dos fases. Una primera en que se ejecutarán el muro central y las salidas de emergencia, y una segunda donde se ejecutarán la cubierta y los pasos de servicios junto con las instalaciones y acabados del túnel generado, que se definirán en otro proyecto. La previsión es que la primera fase empiece en el segundo trimestre de 2024 y que todas las actuaciones de cobertura, estructura e instalaciones estén finalizadas en el segundo trimestre de 2027.

Una vez esté terminada la cobertura, habrá que sacar adelante las obras de urbanización del nuevo espacio que se habrá generado. La definición y las características de la zona de paseo y actividades serán objeto de un proyecto posterior que se concretará en el marco del pacto por la ronda de Dalt y que se ejecutará a partir de 2027, una vez finalizadas las obras de cobertura.
En cuanto al presupuesto, las obras de estructura incluidas en el proyecto que se tramitará ahora contarán con 17,75 millones de euros. A esto habrá que sumarle el coste de las instalaciones y acabados del túnel y el de la urbanización, que se definirán en dos proyectos propios. Se estima que el coste total de todas las obras de cobertura del tramo será de unos 40 millones de euros, de los cuales unos 33 serán en este mandato.
Un gran pacto de ciudad por la cobertura de la ronda de Dalt
El desarrollo de este tramo de cobertura de la ronda, así como la concreción de la urbanización del nuevo espacio urbano que se generará, se abordará en el marco de la Comisión del Pacto para la transformación de la ronda de Dalt y su entorno. Se acordó la creación en el pasado Plenario del Consejo Municipal, y será el órgano donde se estudiarán y se evaluarán las opciones de futuro para la cobertura de la ronda con el máximo diálogo y complicidad entre las entidades vecinales y sociales, instituciones y los grupos municipales que forman parte de ella y la participación de los mejores profesionales de todos los sectores implicados para contar con la máxima información técnica, rigurosa y contrastada.
Hace ya más de 30 años desde que se construyeron las rondas, y desde entonces la ciudad ha ido evolucionando con la creación de nuevos barrios y nuevas centralidades. Las rondas enlazan y conectan, pero también separan barrios y generan ruido y contaminación. Por eso, la ronda de Dalt se cubrió a su paso por barrios como Canyelles, el Bon Pastor y Baró de Viver, y ahora hay que continuar la cobertura por los barrios norte de Horta-Guinardó: Montbau, Vall d’Hebron, Sant Genís y la Teixonera. La nueva comisión se encargará de debatir y concretar las actuaciones urbanísticas y las medidas a sacar adelante, y hacerlo teniendo en cuenta criterios de transición ecológica, urbanísticos, económicos y sociales.
Además de la segunda fase entre IES Vall d’Hebron y la avenida de Vallcarca que ahora inicia la tramitación, también se trabajarán en el marco de la comisión las fases siguientes, que supondrán una nueva superficie ganada para equipamientos y más espacio verde.