Este mes de septiembre se han iniciado las obras de la segunda fase de transformación de la Vía Laietana. Se trata de unos trabajos que suponen un impacto importante sobre este ámbito de la ciudad y que tendrán una duración de 21 meses.
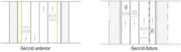
La transformación de la Vía Laietana busca mejorar la conexión entre los barrios del Gótico y de Sant Pere i Sant Caterina i la Ribera, dando un espacio predominante para el peatón, el transporte público y la bicicleta. La remodelación global en toda la vía incluye la ampliación de las aceras hasta los 4,05 metros a lo largo de toda la calle y una nueva sección que incluirá un solo carril de bajada,el mantenimiento de dos carriles de bus (uno de bajada compartido con bici, y uno de subida compartido con el tráfico local) y la inclusión de un carril bici segregado de subida.

Con la segunda fase de las obras se actúa en el tramo situado entre el paseo de Colón y la plaza de Antoni Maura. En este ámbito se prevé reubicar e incrementar la anchura de los pasos de peatones y renovar el alumbrado en fachadas. Este tramo incorpora dos espacios singulares, la plaza del Àngel y el conjunto que forman la plaza Idrissa Diallo y la de Correos.
La primera se reurbanizará dejándola toda al mismo nivel, incrementando el arbolado, incorporando nuevo alumbrado y recolocando y ampliando los pasos de peatones. En cuanto al segundo espacio, se conectarán las plazas de Idrissa Diallo y de Correos con un paso de peatones más ancho y central; también se incorporará un nuevo paso de peatones que conectará con la Barceloneta a través de la calle Llauder; se pacificarán las calles Consolat de Mar, Fusteria y Àngel Baixeras; se incorporará nuevo alumbrado y se aumentará la vegetación con más arbustiva y arbolado, a la vez que se generarán nuevos espacios de estancia.
Para abordar la urbanización de este ámbito, primero se deben realizar una serie de intervenciones previas para recolocar y desviar los servicios que se encuentran en las galerías situadas del subsuelo y para mejorar los colectores existentes. La especificidad de las tareas a realizar convierten esta obra en una de las intervenciones de servicios de mayor complejidad que se han hecho en los últimos años. En un primer momento se valoró la opción de trabajar por bandas (primero Besòs y después Llobregat) para reducir la afectación sobre la movilidad de la Vía Laietana, pero esta planificación habría supuesto doblar el plazo de ejecución, llegando a los 42 meses de trabajos, motivo por el cual se desestimó y se optó por finalizar la obra en el plazo más corto posible.
Situación actual
La actual organización del subsuelo de Vía Laietana incluye el túnel de la L4 de metro, dos colectores a ambos lados y dos galerías de servicios, con la misma disposición, por donde pasan los suministros de gas, agua, electricidad y telecomunicaciones de la zona.
Para llevar a cabo la urbanización de la superficie es necesario ejecutar diferentes tareas en el subsuelo, que se han planificado en el marco del calendario de estos 21 meses.
Algunas de las tareas se podrán hacer de manera simultánea. A continuación se detallan todas las intervenciones que se deberán realizar en este ámbito, en el marco de la segunda fase de las obras.
1.- Catas para la identificación de servicios
Intervención para identificar actividad, vigencia y operadora propietaria de las conducciones (cables) y tuberías que contienen las galerías de servicios. Hay que tener en cuenta que se trata de galerías que no son visitables, y aunque se dispone de información aproximada sobre los servicios que contienen, hay que identificar con precisión la funcionalidad de cada cable o tubería para poder decidir su continuidad y dimensionar los prismas de servicios provisionales y definitivos que deberá haber en la Vía Laietana. Calendario: Septiembre-Noviembre 2023.
2.- Reparación de colectores
Actuación que consistirá en la reparación de las paredes internas y la cubeta inferior de varios colectores a lo largo de toda la vía. Los colectores están junto a fachada y estos trabajos afectarán el paso de los vecinos por las aceras. Para que puedan hacer los desplazamientos se les habilitará un paso en la calzada central, donde deberán convivir vehículos y peatones, que estarán separados por las correspondientes barreras de protección. Calendario: Septiembre-Diciembre 2023.
3.- Traslado de servicios de agua y gas
Trabajos para trasladar los servicios de agua y gas que actualmente pasan por las galerías a una nueva ubicación definitiva, que implicará abrir zanjas junto a fachada. También se aprovechará paraponer al día tramos de red obsoletos, mejorando en general el servicio. Estas obras se deberán hacer en coordinación con las compañías de servicios, que son las responsables de poner las tuberías. Calendario: Noviembre 2023-Marzo 2024.
4.- Urbanización entornos Correos y plaza de Idrissa Diallo
En paralelo a estas intervenciones se iniciará la obra de urbanización de los entornos de Correos y de la plaza de Idrissa Diallo. Calendario: Octubre 2023-Julio 2024.
5.- Construcción de prismas provisionales
Actuación para construir unos nuevos prismas (tubos) que estarán situados entre el metro y las galerías actuales, para encajar de manera provisional los servicios de electricidad, telefonía y telecomunicaciones (Endesa, Telefónica y Telecomunicaciones). Se trata de una actuación que no se podrá hacer por tramos, ya que los servicios se deben sustituira todo lo largo. Calendario: Diciembre 2023-Mayo 2024.
6.- Traslado de servicios de electricidad, telefonía y telecomunicaciones a los prismas provisionales
Disposición de las nuevas líneas de servicios a los prismas provisionales. Esta es una de las tareas más complejas de la obra. Cada sustitución de líneas implicará desconexiones puntuales, que se deberán hacer en el menor tiempo posible y manteniendo al máximo las líneas operativas, dado que dan servicio a vecinos, establecimientos y comercios. En el caso del traslado de las líneas de media tensión, también será necesario hacer las tramitaciones para contar con la aprobación del Ministerio de Industria. No se podrá trabajar por partes y cada línea deberá trasladarse de forma íntegra.Calendario: Febrero 2024-Julio 2024.
7.- Construcción de los prismas definitivos
Una vez anulados los servicios antiguos de la galería se procederá a la demolición de la misma y su relleno para la ejecución de los prismas definitivos en el mismo lugar. Es una tarea ligada a la liberación del espacio ocupado por los antiguos servicios. Calendario: Junio 2024-Octubre 2024.
8.- Puesta en marcha de las nuevas conexiones de los servicios de electricidad, telefonía y telecomunicaciones a los prismas definitivos.
Es una tarea que depende de las compañías y de la programación de las desconexiones puntuales. Cuando esté hecho el traslado a su ubicación definitiva se eliminarán los prismas provisionales. Calendario: Noviembre 2024-Enero 2025.
9.- Urbanización de las aceras y calzada de Vía Laietana.
Actuación que se iniciará cuando se confirme que todos los servicios funcionan correctamente: agua, gas, luz, telefónica y telecomunicaciones. Obra de baja complejidad, con bordillos de granito y aceras de baldosa. Calendario: Diciembre 2024-Junio 2025.
Ajustes a la movilidad
El pasado cuatro de septiembre quedaron implantados los cambios de movilidad que afectarán a la Vía Laietana durante estos 21 meses de obras. Desde el primer día el Gobierno municipal ha estado haciendo seguimiento del funcionamiento de la movilidad en este espacio para evaluar su impacto y, si se diera el caso, hacer los ajustes necesarios.
Fruto de este análisis, el Ayuntamiento de Barcelona ha introducido unas primeras modificaciones para mejorar la fluidez del tráfico y tiene previsto añadir más a lo largo del mes de septiembre y del mes de octubre. Son las siguientes:
Medidasya ejecutadas:
- Dar más tiempo de salida a los semáforos de Vía Laietana – paseo Colón.
- Avanzar la línea de detención y los semáforos hacia paseo Colón habilitando dos carriles, en vez de uno, al tramo final, para que un mayor volumen de vehículos puedan detenerse delante del semáforo.
- Suprimir el paso de peatones de Vía Laietana con Jaume I y desviar a los peatones por el paso existente a la altura de Sots Tinent Navarro para facilitar el giro de vehículos hacia Jaume I.
- Revisar programación semafórica según los cambios de configuración ejecutados.
- Sustitución de las barreras de protección actuales por barreras que se puedan desplazar.
Medidas de ejecución previstas para el mes de septiembre y octubre:
- Habilitar doble sentido de circulación de la calle Fusteria en la plaza Idrissa Diallo, para tener una tercera vía de circulación, con nueva señalización de recomendación de itinerarios desde Vía Laietana hacia la calle Consolat de Mar y hacia Fusteria.
- Aumentar los paneles informativos para recomendar bajar por paseo Picasso.
- Habilitar el giro a la izquierda en Pla de Palau, para ir desde Marqués de l'Argentera hacia el paseo Joan de Borbó.
- Modificar la programación semafórica de Vía Laietana con Joaquim Pou para dar más fluidez al tráfico, de manera que los vehículos que salen de Joaquim Pou no se encuentren peatones cruzando en la misma fase.
- Trasladar del paso de peatones existente a la altura del número 2 de Vía Laietana hasta la altura del paseo Colón, con el objetivo de facilitar vías alternativas y evitar que los peatones de paseo Colón tengan que entrar en zona de obras. Esta actuación está supeditada a la finalización de las obras de mejora de la L4, que todavía tiene ocupaciones en superficie.