Aquest mes de setembre s’han iniciat les obres de la segona fase de transformació de la Via Laietana. Es tracta d’uns treballs que suposen un impacte important sobre aquest àmbit de la ciutat i que tindran una durada de 21 mesos.
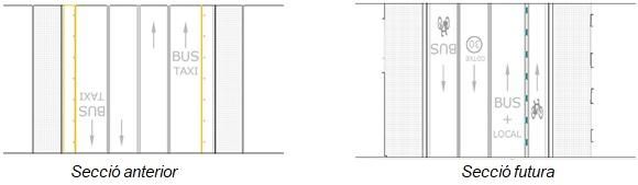
La transformació de la Via Laietana busca millorar la connexió entre els barris del Gòtic i de Sant Pere i Sant Caterina i la Ribera, donant un espai predominant per al vianant, el transport públic i la bicicleta. La remodelació global a tota la via inclou l’ampliació de les voreres fins als 4,05 metres al llarg de tot el carrer i una nova secció que inclourà un sol carril de baixada, el manteniment de dos carrils de bus (un de baixada compartit amb bici, i un de pujada compartit amb el trànsit local) i la inclusió d’un carril bici segregat de pujada.

Amb la segona fase de les obres s’actua al tram situat entre el passeig de Colom i la plaça d’Antoni Maura. En aquest àmbit es preveu reubicar i incrementar l’amplada dels passos de vianants i renovar l’enllumenat en façanes. Aquest tram incorpora dos espais singulars, la plaça de l’Àngel i el conjunt que formen la plaça Idrissa Diallo i la de Correus.
La primera es reurbanitzarà deixant-la tota al mateix nivell, incrementant l’arbrat, incorporant nou enllumenat i recol·locant i ampliant els passos de vianants. Pel que fa al segon espai, es connectaran les places d’Idrissa Diallo i de Correus amb un pas de vianants més ample i central; també s’incorporarà un nou pas de vianants que connectarà amb la Barceloneta a través del carrer Llauder; es pacificaran els carrers Consolat de Mar, Fusteria i Àngel Baixeras; s’incorporarà nou enllumenat i s’augmentarà la vegetació amb més arbustiu i arbrat, alhora que es generaran nous espais d’estada.
Per abordar la urbanització d’aquest àmbit, primer s’han de realitzar un seguit d’intervencions prèvies per recol·locar i desviar els serveis que es troben a les galeries situades del subsol i per a millorar els col·lectors existents. L’especificitat de les tasques a realitzar converteixen aquesta obra en una de les intervencions de serveis de major complexitat que s’han fet en els darrers anys. En un primer moment es va valorar l’opció de treballar per bandes (primer Besòs i després Llobregat) per reduir l’afectació sobre la mobilitat de la Via Laietana, però aquesta planificació hauria suposat doblar el termini d’execució, arribant als 42 mesos de treballs, motiu pel qual es va desestimar i es va optar per finalitzar l’obra en el termini més curt possible.
Situació actual
L’actual organització del subsol de Via Laietana inclou el túnel de l'L4 de metro, dos col·lectors a banda i banda i dues galeries de serveis, amb la mateixa disposició, per on passen els subministraments de gas, aigua, electricitat i telecomunicacions de la zona.
Per a dur a terme la urbanització de la superfície és necessari executar diferents tasques al subsol, que s’han planificat en el marc del calendari d’aquests 21 mesos.
Algunes de les tasques es podran fer de manera simultània. A continuació es detallen totes les intervencions que s’hauran de realitzar en aquest àmbit, en el marc de la segona fase de les obres.
1.- Cales per a la identificació de serveis
Intervenció per identificar activitat, vigència i operadora propietària de les conduccions (cables) i canonades que contenen les galeries de serveis. Cal tenir en compte que es tracta de galeries que no són visitables, i tot i que es disposa d’informació aproximada sobre els serveis que contenen, cal identificar amb precisió la funcionalitat de cada cable o canonada per poder decidir la seva continuïtat i dimensionar els prismes de serveis provisionals i definitius que hi haurà d’haver a la Via Laietana. Calendari: Setembre-Novembre 2023.
2.- Reparació de col·lectors
Actuació que consistirà en la reparació de les parets internes i la cubeta inferior de diversos col·lectors al llarg de tota la via. Els col·lectors estan a tocar de façana i aquests treballs afectaran el pas dels veïns per les voreres. Per tal que puguin fer els desplaçaments se’ls habilitarà un pas a la calçada central, on hauran de conviure vehicles i vianants, que estaran separats per les corresponents barreres de protecció. Calendari: Setembre-Desembre 2023.
3.- Trasllat de serveis d’aigua i gas
Treballs per traslladar els serveis d’aigua i gas que actualment passen per les galeries a una nova ubicació definitiva, que implicarà obrir rases a tocar de façana. També s’aprofitarà per posar al dia trams de xarxa obsolets, millorant en general el servei. Aquestes obres s’hauran de fer en coordinació amb les companyies de serveis, que són les responsables de posar les canonades. Calendari: Novembre 2023-Març 2024.
4.- Urbanització entorns Correus i plaça d’Idrissa Diallo
En paral·lel a aquestes intervencions s’iniciarà l’obra d’urbanització dels entorns de Correus i de la plaça d’Idrissa Diallo. Calendari: Octubre 2023-Juliol 2024.
5.- Construcció de prismes provisionals
Actuació per construir uns nous prismes (tubs) que estaran situats entre el metro i les galeries actuals, per encabir de manera provisional els serveis d’electricitat, telefonia i telecomunicacions (Endesa, Telefònica i Telecomunicacions). Es tracta d’una actuació que no es podrà fer per trams, ja que els serveis s’han de substituir a tot el llarg. Calendari: Desembre 2023-Maig 2024.
6.- Trasllat de serveis d’electricitat, telefonia i telecomunicacions als prismes provisionals
Disposició de les noves línies de serveis als prismes provisionals. Aquesta és una de les tasques més complexes de l’obra. Cada substitució de línies implicarà desconnexions puntuals, que s’hauran de fer en el menor temps possible i mantenint al màxim les línies operatives, atès que donen servei a veïns, establiments i comerços. En el cas del trasllat de les línies de mitja tensió, també serà necessari fer les tramitacions per comptar amb l’aprovació del Ministeri d’Indústria. No es podrà treballar per parts i cada línia haurà de traslladar-se de forma íntegra. Calendari: Febrer 2024-Juliol 2024.
7.- Construcció dels prismes definitius
Una vegada anul·lats els serveis antics de la galeria es procedirà a la demolició de la mateixa i el seu reblert per a l’execució dels prismes definitius al mateix lloc. És una tasca lligada a l’alliberament de l’espai ocupat pels antics serveis. Calendari: Juny 2024-Octubre 2024.
8.- Posada en marxa de les noves connexions dels serveis d’electricitat, telefonia i telecomunicacions als prismes definitius.
És una tasca que depèn de les companyies i de la programació de les desconnexions puntuals. Quan estigui fet el trasllat a la seva ubicació definitiva s’eliminaran els prismes provisionals. Calendari: Novembre 2024-Gener 2025.
9.- Urbanització de les voreres i calçada de Via Laietana.
Actuació que s’iniciarà quan es confirmi que tots els serveis funcionen correctament: aigua, gas, llum, telefònica i telecomunicacions. Obra de baixa complexitat, amb vorades de granit i voreres de panot. Calendari: Desembre 2024-Juny 2025.
Ajustos a la mobilitat
El passat quatre de setembre van quedar implantats els canvis de mobilitat que afectaran la Via Laietana durant aquests 21 mesos d’obres. Des del primer dia el Govern municipal ha estat fent seguiment del funcionament de la mobilitat en aquest espai per tal d’avaluar el seu impacte i, si s’esqueia, fer els ajustos necessaris.
Fruit d’aquesta anàlisi, l’Ajuntament de Barcelona ha introduït unes primeres modificacions per tal de millorar la fluïdesa del trànsit i té previst afegir-ne més al llarg del mes de setembre i del mes d’octubre. Són les següents:
Mesures ja executades:
- Donar més temps de sortida als semàfors de Via Laietana – passeig Colom.
- Avançar la línia de detenció i els semàfors cap a passeig Colom habilitant dos carrils, en comptes d’un, al tram final, perquè un major volum de vehicles puguin aturar-se davant del semàfor.
- Suprimir el pas de vianants de Via Laietana amb Jaume I i desviar els vianants pel pas existent a l’altura de Sots Tinent Navarro per facilitar el gir de vehicles cap a Jaume I.
- Revisar programació semafòrica segons els canvis de configuració executats.
- Substitució de les barreres de protecció actuals per barreres que es puguin desplaçar.
Mesures d’execució previstes pel mes de setembre i octubre:
- Habilitar doble sentit de circulació del carrer Fusteria a la plaça Idrissa Diallo, per tenir una tercera via de circulació, amb nova senyalització de recomanació d’itineraris des de Via Laietana cap al carrer Consolat de Mar i cap a Fusteria.
- Augmentar els panells informatius per recomanar baixar per passeig Picasso.
- Habilitar el gir a l’esquerra a Pla de Palau, per anar des de Marquès de l’Argentera cap al passeig Joan de Borbó.
- Modificar la programació semafòrica de Via Laietana amb Joaquim Pou per donar més fluïdesa al trànsit, de manera que els vehicles que surten de Joaquim Pou no es trobin vianants creuant a la mateixa fase.
- Traslladar del pas de vianants existent a l’alçada del número 2 de Via Laietana fins a l’alçada del passeig Colom, amb l’objectiu de facilitar vies alternatives i evitar que els vianants de passeig Colom hagin d’entrar en zona d’obres. Aquesta actuació està supeditada a l’acabament de les obres de millora de la L4, que encara té ocupacions en superfície.